Je vous présente la rénovation d’un appartement à Thonon les Bains.
Mes clients souhaitaient une modélisation de leur espace de vie avec un conseil aménagement. Ce projet a été une réelle collaboration entre ce couple et moi-même.
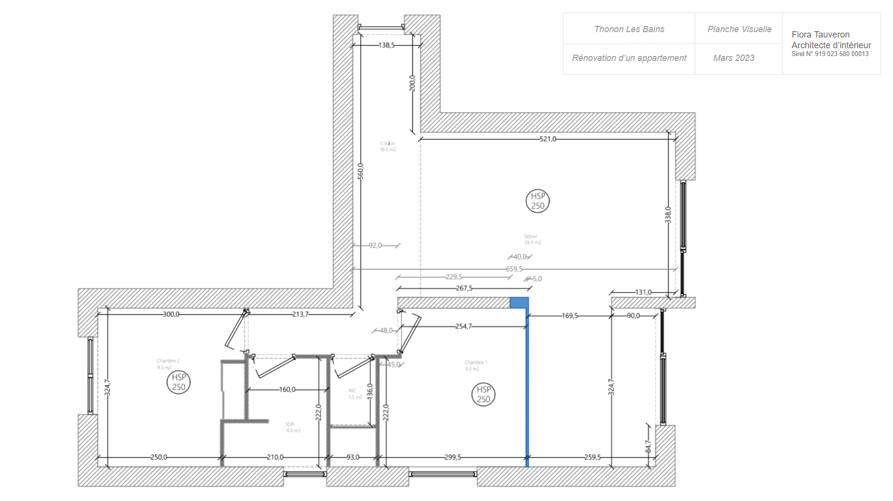
Les plans de l’appartement ont permis la réalisation des travaux réalisés par leurs soins.


Logiciel :
– Sketchup (modélisation)
– Autocad LT (plan état des lieux et projeté)
Photos de la réalisation,









